Facebook Linkedin

Conseil – études expertises – Gestion de bureaux – Transactions – Commercialisation – Fonds de commerce – Locaux industriels – Magasins entrepôts – Terrain industriel

NOS ANNONCES
  • Accueil
  • Investissement
  • Locaux d’activités
  • Locaux commerciaux
  • Fonds de commerce
  • Gestion Locative
  • Contact
  • Accueil
  • Investissement
  • Locaux d’activités
  • Locaux commerciaux
  • Fonds de commerce
  • Gestion Locative
  • Contact

Bureaux EPINAL

26 novembre 2025 / Commentaires fermés sur Bureaux EPINAL
A louerBureauÉpinal8800088000, ÉPINAL, France
  • Compare
  • Enregistrer
  • Partager
+1
  • Compare
  • Enregistrer
  • Partager
  • Bureau
  • A louer

Bureaux EPINAL

88000, ÉPINAL, France
  • 300 m²
43 200 €
Demande d'info

Informations techniques

  • Date ajoutée: Ajouté il y a 3 mois
  • Catégorie: A louer
  • Quel est votre type de propriété?: Bureau
  • Statut: Actif
  • Superficie: 300 m²
  • La taille du lot : 300 m²

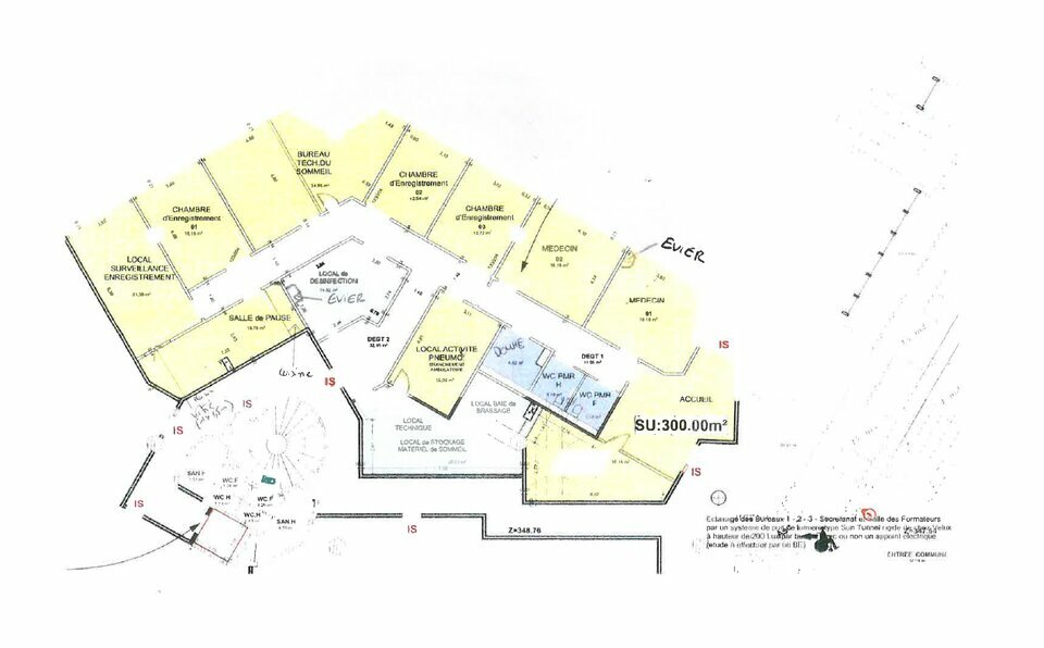
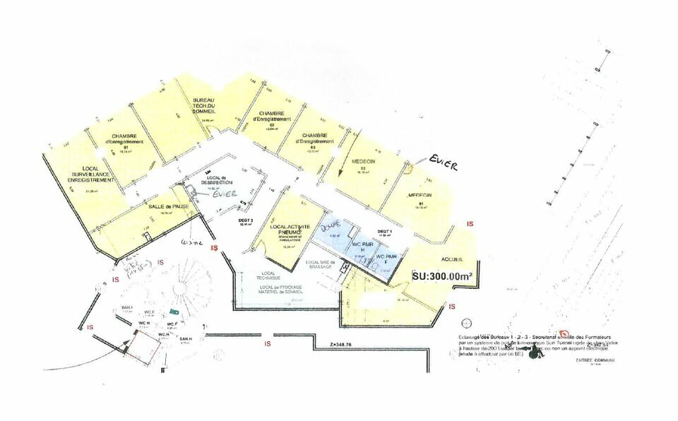
Description du bien

  • Description du bien:

    A LOUER, A EPINAL, zone de la Voivre,

    Très beaux bureaux d'une surface d'environ 300 m² entièrement rénovés, climatisation réversible, sanitaire PMR, douche et grand parking et terrasse privative. Proche des grands axes routier et du centre-ville. Possibilité d'extension, conditions à définir.

    Loyer mensuel de 3600 € net charges comprises (entretien, eau, électricité…),

    Honoraires d'agence fixés à 30 % hors taxes du loyer annuel,

    Nous contacter pour tout renseignement.

    Afficher toute la description

Demandez des informations sur cette affaire

Téléphoner
En cliquant sur le bouton «DEMANDE D'INFO», vous acceptez les Conditions d'utilisation et Politique de confidentialité

Contact Conseiller

  • Conseiller nom: SAUNIER
  • Conseiller prénom: Bruno
  • Conseiller téléphone: 03 29 82 26 26
  • Conseiller email: bruno.saunier@delbet.fr

Adresse Détaillée

  • Adresse publiable: 0
  • Adresse ligne 1: Épinal
  • Code département: 88

Surfaces et Divisibilité

  • Divisible: 0
  • Divisibilité minimum: 0

Prix et Conditions

  • Prix location annuelle: 43200
  • Unité location: Euros NET / an
  • Prix vente: 0
  • Unité vente: Euros
  • Location ET vente: 0

DPE & GES

  • DPE Valeur: 0
  • GES Valeur: 0

Prestations & Équipements

  • Parking (nombre): 0
  • Ascenseur: 0
  • Climatisation: 0
  • Accès PMR: 0

Disponibilité

  • Disponibilité: A convenir entre les parties
  • Destiné investisseur: 0
  • Mise en avant: 0
  • Année de construction: 0

Caractéristiques Techniques

  • Linéaire vitrine: 0
  • Linéaire façade: 0
  • Hauteur sous ferme: 0
  • Contrôle d'accès: 0
  • Pas de chauffage: 0
  • Ponts roulants: 0
  • Portes sectionnelles: 0
  • Quais: 0
  • Portes à quai: 0
  • Rez-de-chaussée: 0

Labels & Certifications

  • Établissement ERP: 0
  • Label BBC: 0
  • Label HQE: 0
  • Label HPE: 0
  • Label THPE: 0

Emplacement & Situation

  • Rue piétonne: 0
  • Rue semi-piétonne: 0
  • Rue à circulation: 0
  • Angle de rue: 0
  • Emplacement N°1: 0
  • Périphérie: 0
  • Centre-ville: 0
  • Centre commercial: 0
  • Zone franche: 0
  • Métro: 0
  • Bus: 0
  • RER: 0
  • Tramway: 0
  • Gare SNCF: 0
  • Gare TGV: 0
  • Vélib: 0
  • Transports à proximité: 0

Panneau & Publicité

  • Commerce avec logement: 0
  • Panneau posé: 0

Partagez ce property

Copie

Ou partager avec

Par zoe@delbet.fr

L’IMMOBILIÈRE D’ENTREPRISE - DELBET 9 QUAI CONTADES- 88000 EPINAL France
Tél : 03 29 82 26 26

Carte professionnelle
n° 8801 2018 000 027 902
CCI des Vosges

ESTIMATION – ÉTUDE – CONSEIL
Réalisation de toute estimation immobilière ou mobilière (droit au bail, fonds de commerce, valeurs d’entreprises…) 

L’IMMOBILIÈRE D’ENTREPRISE – DELBET intervient également en sa qualité de conseil en valeurs locatives.

Toute demande d’estimation est réalisée après validation du devis.

  • Mentions Légales
  • Politique de confidentialité
  • Cookies
  • Ajout annonce
  • Mentions Légales
  • Politique de confidentialité
  • Cookies
  • Ajout annonce

Site web maintenu par A3526– Le Docteur Web 

Connexion ou Inscription

pour enregistrer vos maisons préférées et plus encore

Connexion ou Inscription

pour enregistrer vos maisons préférées et plus encore

Toutes les options de connexion
Mot de passe oublié?

Reset password

Entrez votre adresse e-mail et nous vous enverrons un lien pour changer votre mot de passe.

Retour à la connexion